Logo des Feriendorfs, stilisierte Häuser in grüner Landschaft, blauem Hiommel und Regenbogen
Feriendorf Öfingen
Logo der DreiWelten Card mit Link

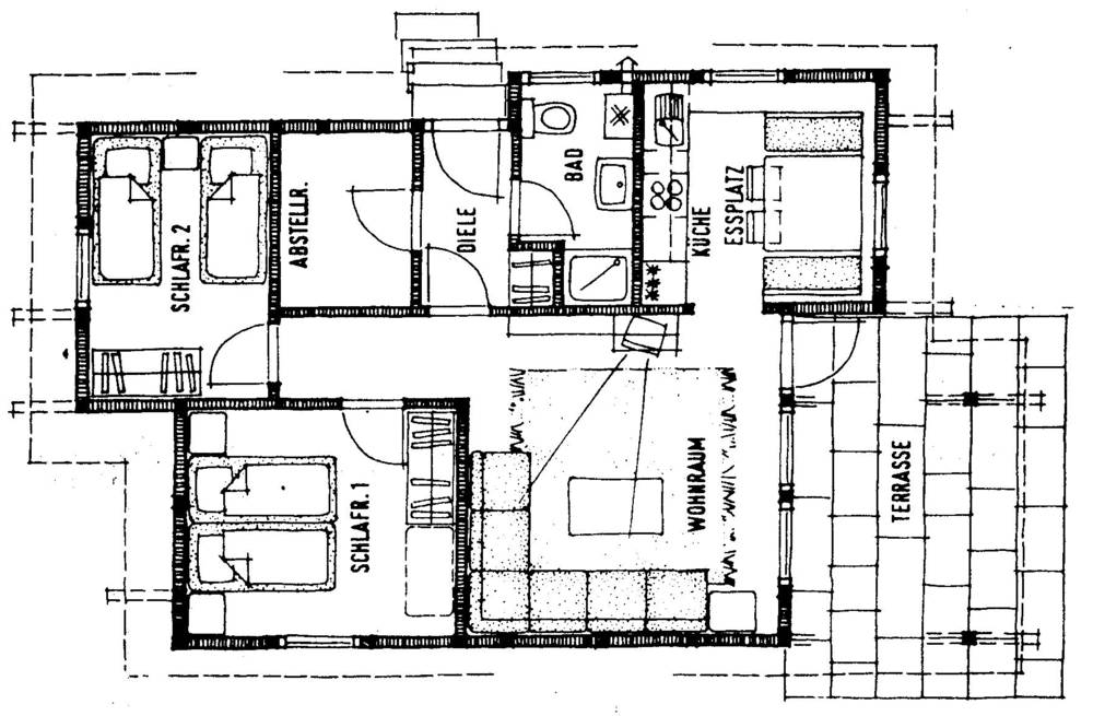
Haustyp Silbersee

Satteldachhaus für 4 bis 6 Personen, 65 qm

Geräumiger Wohnraum mit separater Eßecke, freundliche und funktionelle Küche, Bad mit Dusche und WC, zwei Schlafräume mit jeweils zwei Betten, z.T. zusätzliche Schlafkoje, Abstellraum und überdachte Terrasse


Außenansicht Haustyp Silbersee
Ebenerdiges und gemütliches Ferienhaus im Fachwerk-Look
Beispiel Wohnzimmer Haustyp Silbersee
Wohnzimmer
Beispiel Küche Haustyp Silbersee
Küche
Grundriss Haustyp Silbersee
Grundriss, zum Vergrößern bitte anklicken
Wichtiger Hinweis: die Häuser können sich im Grundriss geringfügig unterscheiden und sind individuell eingerichtet. Die obigen Darstellungen sind nur Beispiele!