Logo des Feriendorfs, stilisierte Häuser in grüner Landschaft, blauem Hiommel und Regenbogen
Feriendorf Öfingen
Logo der DreiWelten Card mit Link

Haustyp Mohikaner

Satteldachhaus bis 4 Personen, 40 qm

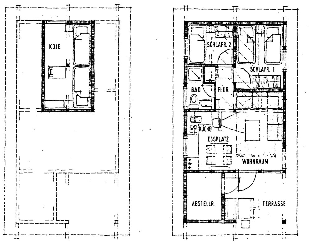
Wohnzimmer mit Eßecke und Küche, Dusche/WC, Flur, 1 Schlafraum mit 2 Betten, 1 Schlafraum mit 1 Bett, dazu die über eine Leiter erreichbare Schlafkoje, Abstellraum, und Sonnenterrasse

Außenansicht Haustyp Mohikaner
Kleines und urgemütliches Ferienhaus
Aussenansicht
Wohnzimmer mit Sitzecke im Typ Mohikaner
Wohnzimmer
Küche im Haustyp Mohikaner
Küche
Grundriss eines Hauses "Mohikaner"
Grundriss, zum Vergrößern bitte anklicken
Wichtiger Hinweis: die Häuser können sich im Grundriss geringfügig unterscheiden und sind individuell eingerichtet. Die obigen Darstellungen sind nur ein Beispiel!